Demo
Blog
Join Waitlist
Request a Demo
Demo Gallery
← Back to Home
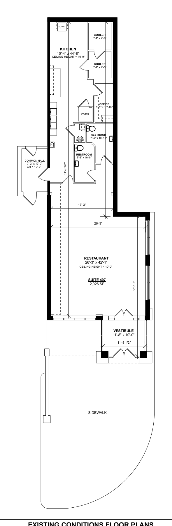
Main St (Existing Conditions)
FMOC_A -- 50% CD
−
100%
+
Fit
Layers
Original PDF
Wall Overlay
Room Overlay
Room Editor
Start Drawing
← Previous
Next →